Auenstraße 61, 85051 Ingolstadt

4 Zimmer Stadthaus

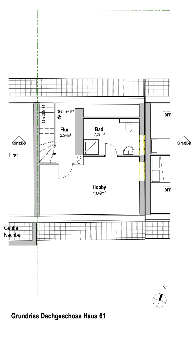
Dieses großzügige 3,5-Zimmer-Haus besticht durch eine separate Küche, ein helles Dachstudio und einen vielseitig nutzbaren Hobbyraum. Zwei Bäder, ein separates WC und ein eigener Keller sorgen für einen hohen Wohnkomfort. Ein besonderes Highlight ist der lichtdurchflutete Wintergarten, der gemeinsam mit der Terrasse und dem Garten viel Raum zum Entspannen bietet.

  • Kaufpreis 595.000 €

  • Wohnfläche 122,62 m²

Energiesparendes Bauwerk

Das massiv gebaute und wärmegedämmte Haus ermöglicht nachhaltiges Wohnen in bester Lage von Ingolstadt zu niedrigen Energiekosten.

Luft-Wasser-Wärmepumpe

Eine zukunftssichere Haustechnik mit moderner Wärmepumpe sorgt für effizientes Heizen und angenehme Temperaturen zu jeder Jahreszeit.

Fußbodenheizung

Eine komfortable Fußbodenheizung mit Einzelraumsteuerung sorgt für Behaglichkeit und ermöglicht eine flexible Nutzung aller Räume.

Hochwertige Ausstattung

Echtholzparkett, elektrische Rollläden und Dreifachverglasung vereinen Qualität und Komfort in unmittelbarer Nähe zu den Donau-Auen und zahlreichen nahegelegenen Parkanlagen.

Haunwöhr, Ingolstadt

Auenstraße 59B, 85051 Ingolstadt

  • Supermarkt: 200 m
  • Bushaltestelle: 150 m
  • Stadtmitte: 5 Min.
  • Kitas & Schulen: 5 Min.
Kontakt
Kontakt